2023年12月25日至29日,环艺大一四个班级开展制图识图实训。制图识图实训是环艺专业的重要实训,本实训结合制图识图课程的理论学习,进行建筑施工图绘制、装饰施工图绘制,锻炼学生手工制图的能力,并让学生在绘图中巩固自身的识图能力,加深理论知识和提升绘图能力。让学生在此次实训中了解手工制图的过程和加深对相关图纸类型的认知,从而建立基础的识图绘图能力体系。
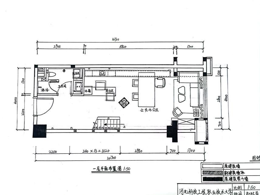
本次实训要求同学们熟读实习参考文件,根据要求,完成制图识图教材上拓展项目二:家居室内设计施工图识读与绘制。其中包括平面布局图、地面铺装图、天花图、立面图等。
各班经过为期5天的项目实训,更好地掌握了制作方法、细节绘制等应用知识,同时熟悉了室内设计行业的相关设计规范等基本制作流程。同学们独立自主地完成项目,发挥了学生的自主能动性。在绘制过程中遇到问题,通过老师帮助,生生互助的方式,提高学生们的集体意识及解决问题的能力。


